Italiano
English
395.000 €

Villa in vendita a Besozzo

Villa in vendita • Besozzo
In zona collinare del paese, in contesto di assoluta tranquillità e riservatezza,
bellissima villa recentemente riqualificata in classe A1.
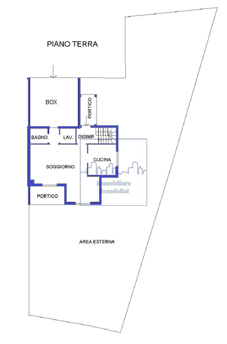
Gli ambienti ambienti spaziosi e ben distribuiti comprendono:
. al piano terreno zona living/pranzo con camino e porticato vivibile con affaccio sul bel giardino, cucina abitabile, lavanderia, bagno ospiti.
. al piano primo tre grandi camere di cui camera padronale con spaziosa cabina armadio finestrata, bagno interno e terrazzo, altre due camere matrimoniali condividono un bel terrazzo e un altro bagno.
Completa di comodo garage doppio in larghezza e ben tre posti auto privati.
Circondata su tre lati da curato giardino pianeggiante con piscina esterna.
La riqualificazione in classe A1 con impianto fotovoltaico con accumulo, serramenti con triplo vetro, colonnina per ricarica veicoli elettrici, cappotto esterno da 18 cm, garantisce la massima efficienza e sostenibilità.
Completamente accessoriata: bagni moderni, antifurto, vasca idromassaggio, camino, tende da sole elettrificate con telecomando, zanzariere a tutte le finestre, serramenti triplo vetro, persiane alluminio, gradevole piscina esterna e una moderna cucina compresa nel prezzo.
Libera subito e pronta da abitare, Una soluzione abitativa che coniuga design, spazi generosi e massima efficienza.
In vendita a 395.000


Caratteristiche principali
Codice
V001046
Città
Besozzo
Categoria
Villa
Prezzo
395.000 €
Locali
5
Camere
3
Bagni
3
Mq
174
Box
1
Mq Box
30
Posti auto
2
Mq Giardino
300
Balconi
2
Piano
Terra
Classe energetica
A1
80,16
Stato Immobile
Ristrutturato
Grado
Signorile
Posizione
Collina
Panorama
Vista Giardino
Orientamento
Nord Est Sud
Lati Liberi
3
Giardino
Privato
Arredi
Solo Cucina
Tipo Soggiorno
Soggiorno
Tipo Cucina
Abitabile
Riscaldamento
Autonomo
Tipo Riscaldam.
Caldaia
Tipo Impianto
Radiatori
Fonte Energetica
Metano
Acqua Calda
Autonoma
Infissi
Alluminio Triplo Vetro
Persiana
Persiana Metallo
Pavim. Giorno
Gres Porcellanato
Pavim. Notte
Parquet
Pavim. Cucina
Gres Porcellanato
Pavim. Bagno
Gres Porcellanato
Isolamento
Presente
Isolamento termico
Cappotto esterno
Spessore cappotto (cm)
18

Accessori: Antifurto, Camino, Cancello Elettrico, Doppi Vetri, Impianto Fotovoltaico, Lavanderia, Piscina, Porta Blindata, Ripostiglio, Tripli Vetri, Vasca Idromassaggio, Zanzariere

Distanze
Posizione
Centro800 m
Istruzione
Scuola materna100 m
Scuola elementare500 m
Scuola media500 m
Scuola superiore500 m
Mezzi di trasporto
Fermata metro-bus-tram800 m
Stazione dei treni800 m
Altri servizi
Banca800 m
Chiesa800 m
Farmacia800 m
Supermercato1 km
Richiedi informazioni
Invia
Condividi su
Cookie preference